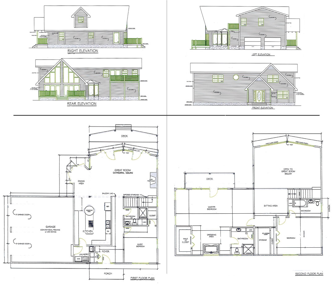
2648 SQ. FT. TENNESSEE LAKESIDE
The Tennessee Lakeside is a spacious two level home.
Standard features include:
First level:
- Guest bedroom
- 1 Bath
- Kitchen
- Dining area
- Foyer
- Great room
- Fireplace
- Laundry room
- 2 Car garage
- Large deck
Second level:
- 2 Bedrooms
- 2 Bath
- Dressing area in master bedroom
- Walk in closet
- Sitting area
- Storage room
This plan can be customized to fit your desires.
Call us at 423-323-8163 or 423-930-8057 for more details.




